D6816-1102
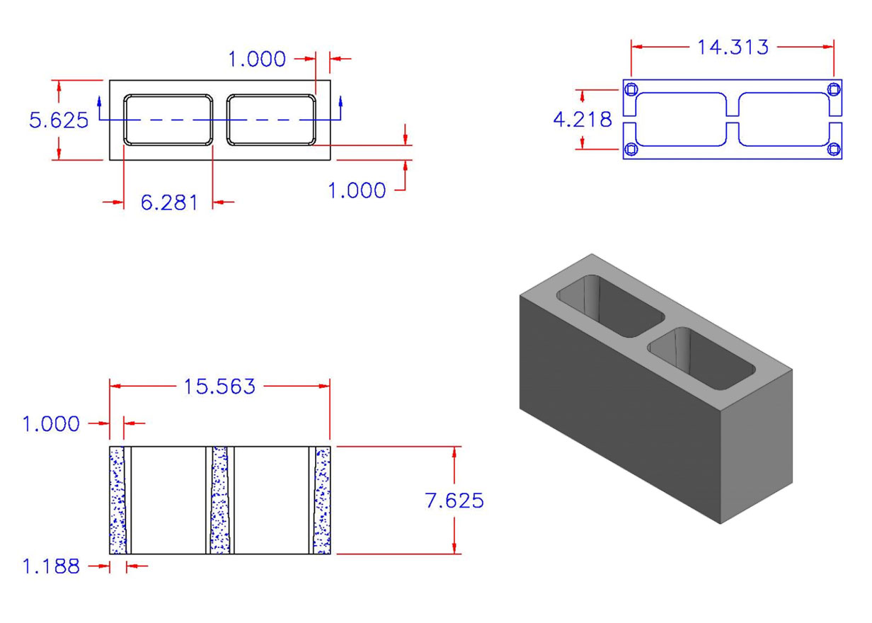
Square Core Plain End
Straight Bottom Block
(Other Sizes and Styles Available)
Square Core Plain End
Straight Bottom Block
(Other Sizes and Styles Available)
| Unit Calculations |
| 350.07 Net Cubic Inches |
| 52.24 % Solid |
| 2.9 Equivalent Thickness |
